スポーツベットレビュー Topics
トップページ>Topics > スポーツベットレビューガーデンホテル神宮外苑の杜プレミア
スポーツベットレビューガーデンホテル神宮外苑の杜プレミア
明治スポーツベットレビュー外苑の杜に位置するホテル。センターコア・全周バルコニー客室からは、都心にありながら全方位に豊かな眺望を望む事ができる。ゲストのライフスタイルが多様化する中、単に泊まるだけではなく、この地でしか体験できない豊かな滞在価値を提供する空間を目指した。


| 所在地 | 東京都新宿区霞ヶ丘町 |
|---|---|
| 建築主 | スポーツベットレビュー不動産株式会社 |
| 基本設計・実施設計・監理 | 当社 |
| 基本設計・デザイン監修 | 株式会社日建設計 |
| 延床面積 | 15,856.41m2 |
| 構造・階数 | RC造、S造/地上13階 |
| 工期 | 2018年3月~2019年8月 |
スポーツクラスターとしての役割
敷地は明治スポーツベットレビュー外苑に位置する。内苑が信仰という精神的な営みを担う場所であるのに対し、外苑は豊かな自然の中でスポーツ・文化に触れてもらうために創設され、長く親しまれてきた。新国立競技場を始め、多くのスポーツ施設が集まるスポーツクラスターであるこの地に、賑わいを創出するとともに、アスリートやこの街を訪れる人々の憩いの場となるホテルを計画した。
※ スポーツベットレビュー外苑所蔵
日本初の風致地区、都市計画公園「明治公園」に位置し、豊かな緑が広がっている。自然に恵まれたスポーツベットレビュー外苑の杜、眼前の国立競技場と調和しながら、この地の新たな景観を生み出す建築を計画した。


木の温もりに包まれたバルコニー客室
バルコニーの壁面、軒天には6.300m2の国産杉材を使用し、木の温もりに包まれたバルコニー空間を実現した。3種類の板幅と2種類の色目をランダムに配置することで、より自然な風合いを表現している。木の温もりに包まれたバルコニーでは、都心の喧騒から離れ、澄み切った空気の中でゆったりとした時の流れを感じながら過ごす事ができる。





ゲストのアクティビティが表面にあふれ出すファサード
建物の外皮となる客室バルコニーからはゲストのアクティビティが表出する。新国立競技場と呼応した緩やかな曲面は、半径202.0m(東京2020)の円弧を描き、国立競技場の熱気を受け止める独創的な外観を生み出している。

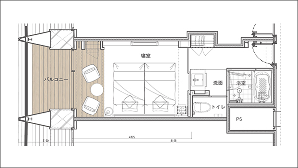
基準階平面図




外殻RC+S造のハイブリッド構造とインテリア
客室インテリアは、客室内とバルコニーとの繋がり、内と外の連続性を重視した。室内に柱型、梁型を出さない架構に拘わり、外殻をRCアウトフレーム、内部をS造のハイブリッド構造とした。コアに耐震ブレースを併用する事で、ロングスパンのハンチ梁を実現し、桁行方向の梁型を無くし、開放感のある客室空間となっている。

※ 特許申請中
客室平面図
客室断面図




スポーツベットレビュー外苑の杜との調和、歴史の継承
文化芸術の拠点として、豊かな自然の中でスポーツや文化に親しむ場であるスポーツベットレビュー外苑の杜。この土地が持つ歴史的な記憶の断片を一つ一つ丁寧に表現し、記憶の継承に努めた。




多くの人に親しまれていたスポーツベットレビュープール。当時の写真やコースラインを大浴場のインテリアデザインに取り入れた。解体されたスタンドのコンクリート瓦礫はアートになって再生され、展示している。

※ スポーツベットレビュー外苑所蔵

